3. Hur säkerställs funktionen?

Återinrymningsbara dörrar utformas ofta utan låsbeslag (vred eller nyckellås exempelvis), vilket innebär att dörren inte går att låsa åt något håll. På så sätt går det alltid att återvända efter passage.

I det fall dörren normalt är låst kan dörren förses med en anordning som håller dörren upplåst efter passering. Det kan exempelvis vara en dörr med elektrisk öppning via taggläsare som kompletteras med ett nödbeslag enligt SS-EN 179 (grönt utrymningshandtag) som håller dörren upplåst till dess att låset återställts manuellt.

I dessa fall är det viktigt att säkerställa att dörren inte kan passeras utan att möjligheten till återinrymning finns. Exempelvis ska det undvikas vred som manövrerar tryckesfall på sådana dörrar (dörrar som låses upp med vred och som låser sig automatiskt när dörren stängs igen). Risken finns att en utrymmande låser upp dörren med vredet vilket förhindrar att återinrymningsfunktionen aktiveras. Ett sådant utförande uppfyller inte kraven på robusthet enligt 7 kap 6 § BFS 2024:7.

Tecknad bild på en dörr som låses automatiskt.

Figur 5: Vissa typer av beslagning och lås medför att dörren låses automatiskt när den stänger. För dessa dörrar är det särskilt viktigt att aktivering av återinrymningsfunktioner säkerställs om detta är ett krav.

I det fall personer kan öppna dörren med en tagg eller nyckel och detta är en acceptabel utrymningsstrategi så kan nyckeln/taggen även användas för återinrymning. Detta gäller exempelvis vissa situationer för verksamhetsklass 1, 3A, 3B och 3C. Utgångspunkten är vara att om utrymning får ske med nyckel enligt 7 kap 34 § så får även återvändandet vara beroende av nyckel eller liknande. Observera dock att detta inte gäller verksamhetsklass 5B.

Enligt 7 kap. 8 § BFS 2024:7 behöver funktionen för återvändande vid utrymning säkerställas vid strömbortfall i händelse av brand. I det fall upplåsning av dörren styrs elektriskt kan detta uppnås genom att:

  • Dörren låses upp i strömlöst läge (omvänd funktion)
  • Strömmatning utförs brandsäkert förlagd eller i brandklassat utförande
  • Funktionen förses med batteribackup
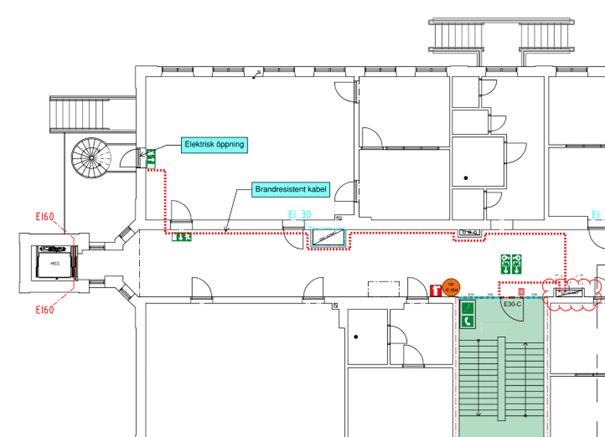
Tecknad bild som illustrerar strömbortfall vid brand.

Figur 6: Strömbortfall i händelse av brand kan förebyggas genom brandresistent kabel, brandsäkert förlagd kabel, inbyggd batteribackup eller att dörren låses upp på strömbortfall (omvänd funktion).

I verksamhetsklass 5A, 5B och 5C ska funktionen dessutom upprätthållas även vid strömbortfall som inte är orsakade av brand. Anledningen är för att utrymningsstrategin i dessa verksamheter är sådan att personalen vid en utrymning alltid kan behöva återvända in i byggnaden. I det fall upplåsning av dörren styrs elektriskt kan detta uppnås genom att:

  • Dörren låses upp i strömlöst läge (omvänd funktion).
  • Strömmatning utförs brandsäkert förlagd eller i brandklassat utförande och kopplas mot ett centralbatteri eller reservkraftverk i byggnaden (vanlig lösning i sjukhus).
  • Funktionen förses med batteribackup lokalt vid dörren.
Tecknad bild som illustrerar strömbortfall vid brand.

Figur 7: En inbyggd batteribackup är ofta en enkel och robust lösning för att säkerställa öppnings- och återvändandefunktioner vid strömbortfall. Ifall kravet ställs på många dörrar (exempelvis i sjukhus) kan en central batteristation vara aktuell.

Något som behöver tas särskild hänsyn till när elektrisk öppning tillämpas är risken för att utrymnings/återinrymningsfunktionen slås ut vid brand i brandcellen. Ett vanligt förekommande fel vid projektering är följande kombination:

  • Utrymnings/återinrymningsfunktion är elektriskt styrd.
  • Ström till öppningsfunktionen matas enbart från en central plats i huset.
  • Kablar från lokal elcentral till dörr utförs brandresistenta/brandskyddade.
  • Elcentralen utförs dock som en del av brandcellen i övrigt (skiljs inte av brandtekniskt).

I detta fall kan en brand i elcentralen slå ut nödvändiga utrymningsfunktioner. Eftersom elcentralen inte är brandtekniskt avskild från brandcellen i övrigt kan samma brand påverka personerna i brandcellen som nu inte kan öppna utrymningsdörrar eller återinrymma för att bistå vid utrymningen. Det är av stor vikt att sårbarheten i ett brandsäkert strömförsörjningssystem utreds i detalj. Kedjan är inte starkare än sin svagaste länk och det räcker att en kopplingsdosa utförs oklassad på fel position för att kedjan ska vara bruten.

Tecknad bild som illustrerar strömbortfall vid brand.

Figur 8: Vid brand i elcentralen (rödmolnat) kan strömförsörjningen till elektrisk öppning slås ut. Personer i den branddrabbade brandcellen kan då inte utrymma.