Plats i det fria där brand och brandgaser inte kan påverka utrymmande personer och varifrån gata eller motsvarande kan nås.
Dörr som leder till säker plats eller till utrymningspassage.
Dörr som leder till annan brandcell inom vilken tillgång till utrymningsdörr finns i samma plan.
Förbindelseväg såsom korridor, trapphus eller loftgång som leder till säker plats.
BSK-Notering: I BFS 2024:7 anges att invändig utrymningspassage ska utföras som egen brandcell.
Väg till utrymningsdörr, alternativ utrymningsdörr, fönster eller motsvarande för utrymning.
BSK-Tips: En invändig interntrappa, dvs en trappa som inte är utförd i egen brandcell, är inte att betrakta som utrymningspassage utan endast som väg till utrymningsväg.
Avstånd
Vid mätning av avstånd till utrymningsdörr, alternativ utrymningsdörr, fönster eller motsvarande för utrymning ska riktningsförändringarna enligt Boverkets preciserade krav ske rätvinkligt och mätas från det mest ogynnsamma fallet. Avståndet ska normalt mätas fram till närmsta utrymningsdörr, alternativ utrymningsdörr, fönster eller motsvarande för utrymning.
Med mest ogynnsamma fall avses den plats i en lokal som är längst ifrån utrymningsdörr, alternativ utrymningsdörr, fönster eller motsvarande för utrymning. Avstånd inom utrymningspassager avser hur långt avstånd som utrymmande personer måste förflytta sig inom:
- ett trapphus som utgör utrymningspassage till trapplopp
- en utrymningspassage som inte utgör trapphus till utrymningsdörr som leder till säker plats eller till trappa som leder till säker plats.
- En utrymningspassage som inte utgör trapphus och som utgör den enda vägen till säker plats till utrymningsdörr som leder till säker plats eller till trappa som leder till säker plats.
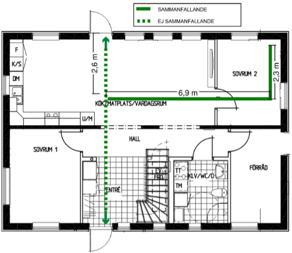
Sammanfallande väg för utrymning
Med sammanfallande väg för utrymning avses avståndet från det mest ogynnsamma fallet fram till den punkt där utrymmande personer är tvungna att välja väg till utrymningsdörr, alternativ utrymningsdörr, fönster eller motsvarande för utrymning.
Sammanfallande väg slutar med andra ord inte räknas där utrymmande personer kan välja väg utan när de måste välja väg.
Sammanfallande väg kan exempelvis handla om korridorer som utgör återvändsgränder eller rum med enbart en dörr ut ur rummet.
I utrymmen med enbart en utrymningsdörr, alternativ utrymningsdörr, fönster eller motsvarande för utrymning, betraktas hela vägen fram till denna som sammanfallande.
Maximalt tillåtet avstånd för sammanfallande väg beror på verksamhetsklassen. Syftet är att begränsa avståndet för sammanfallande väg är att begränsa risken för att personer blir instängda av brand och brandgaser inom lokalen där de vistas och därmed inte kan ta sig till en utrymningsdörr, alternativ utrymningsdörr, fönster eller motsvarande för utrymning.
BSK-Tips: Brandskyddskanalen gör tolkningen att sammanfallande väg enligt Boverkets preciserade krav ska utgöra en sammanhängande sträcka. Med andra ord möjliggör inte mätmetoden för att vägen kan mätas sammanfallande, efter det ej sammanfallande, sammanfallande igen och till sist inte sammanfallande.
Figur 4: Sammanfallande väg och ej sammanfallande väg.
Fler exempel på hur avstånd enligt Boverkets preciserade krav ska mätas redovisas här.