4. Avstånd till utrymningsdörr

Maximalt förflyttningsavstånd

Enligt Boverkets preciserade krav ska avstånd till inte överstiga nedan redovisade, vilket inkludera både den sträcka som är sammanfallande och den som inte är det.

  1. Verksamhetsklass 1, 3A, 3B, 3C och 5B: 45 meter.
  2. Verksamhetsklass 2A, 2B, 4, 5A och 5C: 30 meter.
  3. Verksamhetsklass 2C: 15 meter.

Avstånden ska minskas med en tredjedel om mycket snabb initial brandspridning kan förväntas, vilket till exempel kan vara trä- eller plastvarufabriker och vissa höglager i industrier.

Avstånden ska mätas så att riktningsförändringarna är rätvinkliga.

Från ovanstående grundavstånd finns följande undantag "trots-satser":

  • Avståndet får mätas till fönster eller motsvarande för utrymning om det är högst 15 meter och utrymning via fönster eller motsvarande accepteras enligt 13 § eller 14 §.

    BSK-Tips: Observera att det inte är tillåtet att tillämpa tredje stycket för fönster eller motsvarande där räddningstjänstassisterad utrymning tillämpas, eftersom avstånd till dessa inte är relevant med hänsyn till de risker som föreskriften avser att hantera.

  • Avståndet får vara 45 meter i garage med god överblickbarhet i verksamhetsklass 2A och 2B. Motivet för att tillåta ett längre avstånd är att överblickbarheten kan antas kompensera för att personer inte har lokalkännedom.
  • Avståndet får mätas till alternativ utrymningsdörr om utrymningsdörr finns tillgänglig inom brandcellen.

    BSK-Tips: Utgångspunkten är att avståndet mäts till närmsta utrymningsdörr. Avståndet får dock mätas till alternativ utrymningsdörr men det förutsätter att utrymningsdörr ändå finns tillgänglig inom brandcellen. Motivet beskrivs vara för att säkerställa att brandceller inte förses med tillgång till enbart alternativa utrymningsdörrar. Samtidigt beskriver författningskommentaren till Kap. 7, 9 § att det inte finns något hinder mot att utrymningsdörr finns tillgänglig i an­nan brandcell inom verksamheten, till exempel då brandcellsindelning förekommer med hänsyn till teknikrum, rum för brandfarlig vara och liknande.

    Sammantaget ska detta tolkas: I utrymmen med endast utrymningsmöjligheter via alternativa utrymningsdörrar (utrymningsmöjlighet finns enbart via annan brandcell) tillåts inte att avstånd slutar mätas när utrymmande når annan brandcell utan ska fortsätta mätas till utrymningsdörren i den intilliggande brandcellen. Maximalt tillåtet avstånd från den mest ogynnsamma punkten i utrymmet utan tillgång till utrymningsdörr till minst en utrymmingsdörr i intilliggande brandcell får inte överstiga ovan angivna maximala avstånd.

    Notera att Kap. 7, 9 § inte begränsas till utrymmen med tillfällig vistelse utan gäller alla utrymmen. I en lokal tillhörande verksamhetsklass Vk 2A, vilken endast har tillgång till utrymning över annan brandcell (en väg ut) tillåts inte att gångavstånd slutar mätas vid brandcellsgränsen eftersom personerna inte är i säkerhet vid denna punkt utan avståndet måste mätas förbi denna.

    I de fall en lokal tillhörande verksamhetsklass Vk 2A, vilken har tillgång till två vägar ut (dock endast över alternativa utrymningsdörrar åt båda håll) tilltås inte heller avstånd att sluta mätas vid brandcellsgränsen utan måste mätas förbi denna till närmsta utrymningsdörr i den intilliggande brandcellen.

    Metodiken för att mäta avsånd enligt Boverkets precicerade krav är inte helt logisk eftersom det finns fall där en brandcellsindelning medför att utrymningssäkerheten inte uppfylls. Ett sådant fall är exempelvis aktuellt då det i ett utrymme tillhörande verksamhetsklass Vk 2A, vilken utformas med utrymningsmöjligheter endast via alternativa utrymningsdörrar och där avståndet till den närmsta alternativa utrymningsdörren är 10 meter och avståndet till närmsta utrymningsdörr i intilliggande brandcell är 31 meter. Denna utformning accepteras inte, då metodiken för att mäta avstånd enligt Boverkets precicerade krav inte accepterar att avståndet mäts till den nämsta alternativa utrymningsdörren. Borttagande av en brandcellsgräns medför att avståndet tillåts mätas till alternariv utrymningsdörr varpå utformningen uppfyller Boverkets precicerade krav. Mot denna bakgrund är Brandskyddskanalen ifrågasättande till den metodik som Boverket har för att mäta avstånd för utrymmande personer.

    Sammanfattningsvis måste avstånd mätas till närmsta utrymningsdörr i intilliggande brandcell i de fall ett utrymme endast har tillgång till alternativa utrymningsdörrar där maximalt avstånd inte får överstigas, vilket även innefattar sammanfallande avstånd enligt 7 Kap. 20 §

Sammanfallande väg

Enligt Boverkets preciserade krav ska avstånd i sammanfallande väg inte överstiga följande:

  1. Verksamhetsklass 1, 3A, 3B, 3C och 5B: 30 meter.
  2. Verksamhetsklass 2A, 2B, 4, 5A och 5C: 15 meter.
  3. Verksamhetsklass 2C: 7,5 meter.

Avstånden ovan ska minskas med en tredjedel om mycket snabb initial brandspridning kan förväntas, vilket till exempel kan vara trä- eller plastvarufabriker och issa höglager i industrier.

Avstånden ska mätas så att riktningsförändringarna är rätvinkliga.

Från ovanstående avstånd finns följande undantag:

  • Sammanfallande väg för utrymning får vara 30 meter i garage med god överblickbarhet i verksamhetsklass 2A och 2B.

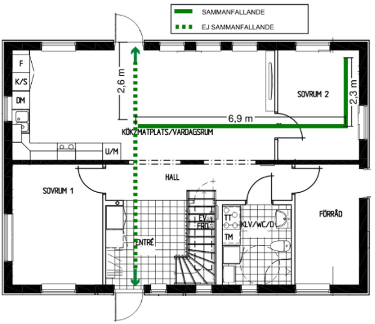
Exempel

Nedan anges exempel för verksamhetsklass 3A, utan sprinklerskydd och utan möjlighet till fönsterutrymning, avseende hur avstånd för utrymmande personer ska mätas i enlighet med Boverkets preciserade krav.

Den totala sträckan till en utrymningsdörr får då inte överstiga 45 meter. Av dessa 45 meter får maximalt 30 meter vara sammanfallande väg. Där flera utrymningsdörrar finns, likt i exemplet nedan, är det alltid det kortaste avståndet som ska mätas.

Bild på avstånd från sovrum 2 till närmsta utrymningsdörr

Figur 5: Från Sovrum 2 är avståndet till närmsta utrymningsdörr cirka 2,3 + 6,9 + 2,6 meter = 11,8 meter, vilket underskrider 45 meter. Den sammanfallande vägen är totalt 2,3 + 6,9 meter = 9,2 meter, vilket underskrider 30 meter. Eftersom både total väg och sammanfallande väg underskrider maximalt tillåtna är utformningen OK enligt Boverkets predicerade krav.

Längre avstånd för utrymning

Trots maximalt totalt avstånd samt maximalt avstånd i sammanfallande för utrymning får längre avstånd för utrymning förekomma om brandcellen skyddas med automatisk vattensprinkleranläggning för personskydd eller boendesprinklersystem. Avstånden enligt 19 och 20 §§ får då utökas med en tredjedel, förutom i verksamhetsklass 2C där avstånden får dubbleras.

Till exempel innebär det att det maximalt tillåtna avståndet till utrymningsdörr eller alternativ utrymningsdörr i verksamhetsklass 1 som skyddas av automatisk vattensprinkleranläggning blir 60 meter.

Syftet är att möjliggöra längre avstånd till utrymningsväg i verksamheter med släcksystem eftersom det innebär ett utökat skydd ur flera aspekter för personer som befinner sig i verksamheten, vilket medför att längre avstånd ändå ger tillfredställande utrymningssäkerhet.

BSK-tips: Observera att förlängda avstånd på grund av installation av automatisk vattensprinkleranläggning för personskydd eller boendesprinklersystem endast, inom ramen för tillämpning av Boverkets preciserade krav, gäller avstånd till utrymningsdörr, alternativ utrymningsdörr, fönster eller liknande och inte inom utrymningspassage. Däremot gäller det även för utrymmen med tillgång till endast en utrymningsdörr. Notera även att sprinklade och osprinklade lokaler ska skiljas med brandcellsgräns då en brand i osprinklade delen annars riskerar att bli för stor för sprinklersystemet att hantera.

Nivåskillnader

Avstånden som följer av 19 §, 20 § och 21 § ska minskas med fyra gånger nivåskillnaden i väg för utrymning.

Med ovanstående menas att när en trappa, ramp eller annan nivåskillnad ingår i väg för utrymning beräknas avståndet alltid som 4 gånger nivåskillnaden oavsett om gångvägen är sammanfallande eller ej.

Observera att med nivåskillnad avses enbart den vertikala höjden, utan hänsyn till avståndet längs med förflyttningslinjen.

Någon reduktion behöver dock inte göras för nivåskillnader som ingår i väg för utrymning från utrymmen där personer inte vistas varaktigt och för trappor på läktare och gradänger.

Syftet med ovanstående är att kompensera för svårigheterna och den ökade tidsåtgången det in¬nebär att behöva passera via trappor i väg till utrymningsväg.

Exempel: Där en trappa ingår i väg för utrymning mäts avståndet först fram till trappan. Därefter mäts den vertikala nivåskillnaden och multipliceras med fyra. Avslutningsvis fortsätter avståndet mätas från botten av trappan.

Bild på avstånd i väg för utrymmande vid nivåskillnader

Figur 6: Avstånd i väg för utrymmande vid nivåskillnader