Avstånd inom utrymningspassage mäts på samma sätt som avståndet till utrymningsdörr, alternativ utrymningsdörr, fönster eller motsvarande för utrymning. Med andra ord mäts avståndet från den mest avlägsna och därmed ogynnsamma platsen och alla riktningsförändringar vid förflyttning sker rätvinkligt.
BSK-Tips: Att riktningsförändringarna enligt Boverkets preciserade krav ska antas vara rätvinkliga görs för att ta höjd för variation i möblering, uppställning av maskiner och dylikt.
I vissa fall är dock funktionen och utformningen av byggnaden så känd att den verkliga gångvägen istället kan användas. Det skulle kunna innebära såväl längre som kortare avstånd än vid rätvinklig förflyttning. Avstånd för utrymmande personer ska därmed i normalfallet mätas rätvinkligt om den verkliga vägen på förhand inte kan fastställas. Detta innebär dock inte att diagonalmätning alltid kan användas över öppna ytor. Mätning av avstånd i en utrymningspassage skulle därmed kunna innebära diagonal mätning. Icke rätvinklig mätning är sammanfattningsvis möjlig i de fall de verkliga förflyttningsvägarna är väl kända. Ett sådant utförande kräver dock analytisk dimensionering.
Maximalt avstånd inom utrymningspassager varierar beroende på om:
- Utrymningspassagen är ett trapphus.
- Utrymningspassage inte är ett trapphus och fler än en väg finns till säker plats.
- Utrymningspassage inte är ett trapphus och är den enda vägen till säker plats.
Nedan redovisas maximala tillåtna avstånd inom utrymningspassage enligt 23 §, 24 § och 25 §.
Observera att samtliga avstånd inom utrymningspassager ska mätas från den mest avlägsna och därmed ogynnsamma platsen.
Tabell 3. Maximalt avstånd inom utrymningspassager
| Förutsättningar | Del som mäts | Maximalt tillåtet avstånd |
|---|---|---|
| Utrymningspassage som utgör trapphus. | Avstånd mäts till trapplopp på varje plan i ett trapphus. | 10 m |
| Utrymningspassage som *inte* utgör trapphus och som *inte* utgör enda vägen till säker plats för betjänade utrymmen. | Avstånd mäts till utrymningsdörr som leder till säker plats *eller* till trappa som leder till säker plats.
Trappan kan vara en brandtekniskt avskild trappa eller en öppen trappa. |
30 m |
| Utrymningspassage som *inte* utgör trapphus och som utgör *enda* vägen till säker plats. (*Invändig* passage, med utrymningsmöjlighet i endast en riktning) | Avståndet ska mätas till utrymningsdörr som leder till säker plats *eller* till trappa som leder till säker plats. | 10 m |
| Utrymningspassage som *inte* utgör trapphus och som utgör enda vägen till säker plats. (*Utvändig* passage, med utrymningsmöjlighet i endast en riktning) | Avståndet ska mätas till utrymningsdörr som leder till säker plats eller till trappa som leder till säker plats. | 15 m |
| Utrymningspassage som *inte* utgör trapphus och som utgör *enda* vägen till säker plats. (Passage med utrymningsmöjligheter i *två* riktningar) | Avståndet ska mätas till utrymningsdörr som leder till säker plats *eller* till trappa som leder till säker plats. | 30 m |
Avstånd inom utrymningspassager som utgör trapphus
Syftet med att begränsa avståndet inom utrymningspassage som utgör trapphus är att begränsa längden på återvändsgränder och nischer. Bestämmelsen innebär också en indirekt begränsning av storleken på ett trapphus.
Avstånd inom utrymningspassage som inte utgör trapphus och som inte utgör enda vägen till säker plats för betjänade utrymmen.
Syftet är att utrymningspassager ska vara lätta att orientera sig i och att utrymmande som väl tagit sig ut i en utrymningspassage relativt snabbt ska nå säker plats eller trapphus som leder till säker plats.
Utrymningspassage som inte utgör trapphus och som utgör enda vägen till säker plats.
Med enda vägen till säker plats avses utrymningspassager som måste passeras för att kunna utrymma från betjänade utrymmen. Exempel på utrymningspassager som utgör enda väg till säker plats, och som därmed omfattas av föreskriften, är utrymningspassage som utgör gemensam del av i övrigt skilda utrymningspassager och slussar till trapphus Tr1 och Tr2.
BSK-Tips: En utrymningspassage betraktas som enda väg till säker plats, även om räddningstjänstassisterad utrymning tillämpas från betjänade utrymmen.
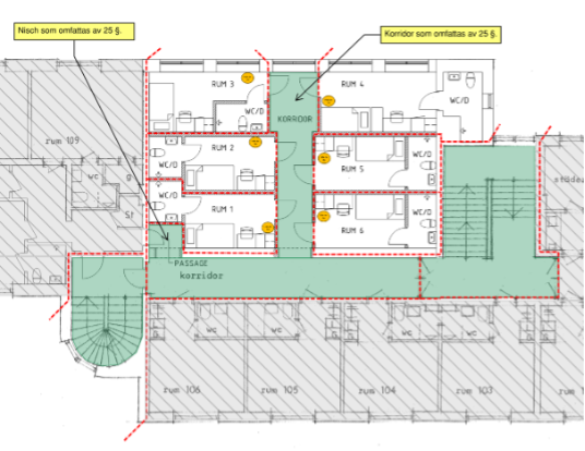
I nischer, återvändsgränder och liknande finns enbart möjlighet att förflytta sig i en riktning. I praktiken innebär detta att där en återvändsgränd, nisch eller motsvarande förekommer ska avståndet från den sämst belägna punkten högst uppgå till de mått som Boverkets preciserade krav redovisar.
Observera dock att små, i praktiken obetydliga, nischer och liknande som finns exempelvis i syfte att underlätta personflöden förbi utåtgående dörrar är inte att betrakta som en sådan återvändsgränd, nisch eller motsvarande som avses ovan.
Nedan redovisas en utformning av en korridor som omfattas av det preciserade kravet och en nisch som inte omfattas av det preciserade kravet.
BSK-Tips: Även om korridoren, som omfattas av 25 §, understiger 10 meter så är utformningen inte inom ramen för Boverkets preciserade krav. Detta eftersom det inte är möjligt att enligt Boverkets metod endast mäta avståndet inom utrymningspassagen till där utrymmande har möjlighet att välja riktning. Det preciserade kravet anger tydligt att avståndet ska mätas till utrymningsdörr som leder till säker plats eller till trappa som leder till säker plats. Det är därför i fallet nedan inte möjligt att först tillämpa 25 § första punkt, vilken anger maximalt tillåtet avstånd inom invändiga utrymningspassager där utrymning endast kan ske i en riktning inom utrymningspassagen, till dess att utrymmande personer kan välja väg och därefter nyttja 25 § tredje punkt där utrymning kan ske i två riktningar inom utrymningspassagen.
Syftet med det preciserade kravet i 25 § är att begränsa den längsta sträcka personer kan behöva förflytta sig genom brandgaser samt att säkerställa att orienterbarheten är god där personer är beroende av utanförliggande korridor, sluss eller motsvarande för att nå trappa eller dörr till det fria. Om utanförliggande utrymme har rökfyllts i någon grad tvingas personer att förflytta sig genom brandgaser för att utrymma. Syftet är också att begränsa längden på nischer och liknande återvändsgränder för att underlätta orienterbarheten i en utrymningspassage och undvika att personer går fel. Avstånd tillås inte mätas från rumsdörrarna utan ska mätas från den mest ogynsamma platsen i utrymningspassagen.
